5 locali in vendita

San Pietro In Casale, Via G. Matteotti
€ 260.000
5 locali 5 locali
206 Mq 206 Mq
2 bagni 2 bagni

5 locali in vendita

San Pietro In Casale, Via G. Matteotti

Descrizione annuncio

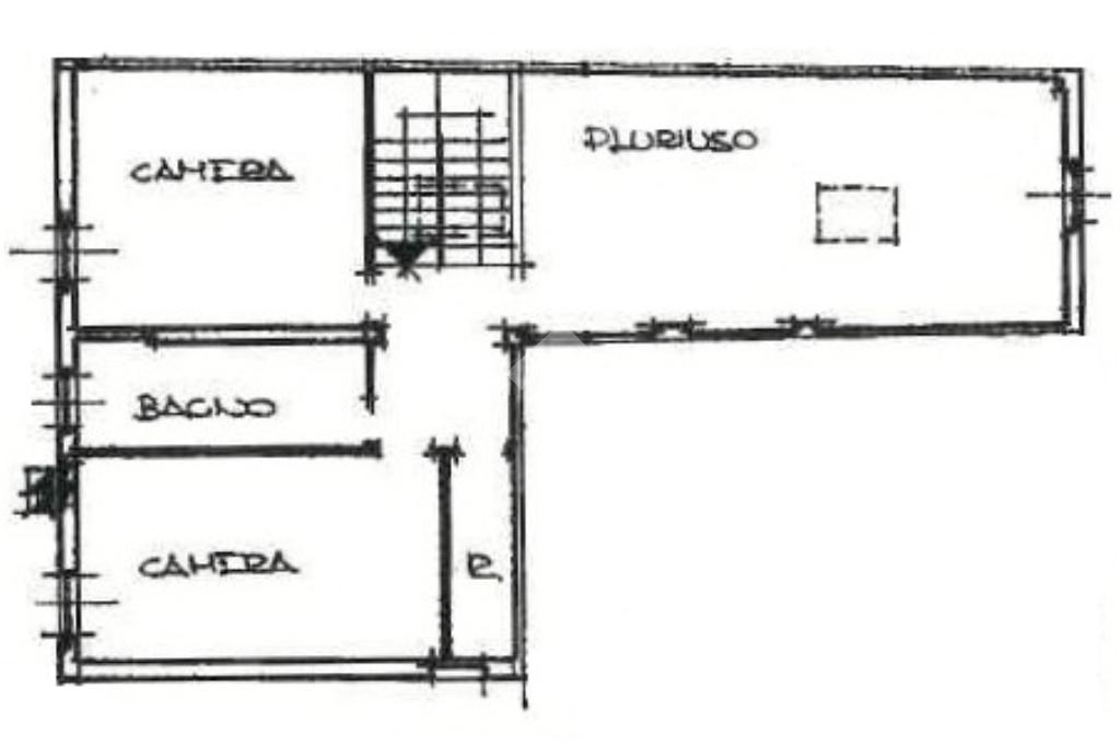
L'immobile è un appartamento che occupa gli ultimi due piani di una palazzina ubicata a San Pietro in Casale, nel cuore del paese. L'ingresso dell'abitazione, dalla pianta regolare e non angusto, permette di ospitare comodi armadi contenitori. La zona giorno è suddivisa in due ambienti: la cucina abitabile ed un ampio soggiorno con caratteristico affaccio sulla piazza del paese. Il piano si completa di camera, dalle dimensioni matrimoniali, e bagno servito da terrazzo. Il secondo ed ultimo livello, con travi in legno a vista, ospita la zona notte con altre due camere da letto e un ampio ambiente pluriuso. Sono presenti il secondo bagno ed un ripostiglio. La proprietà si completa, al piano terra, di cantina.

Fissa un appuntamento per vedere questo immobile e chiama lo 051810741 oppure manda una e-mail a bohb2.

Mostra tutto

Nelle vicinanze

Trasporto pubblico Trasporto pubblico
stazione di San Pietro in Casale
stazione di San Pietro in Casale
310 m
San Pietro In C. Ospedale
San Pietro In C. Ospedale
260 m
San Pietro In C. Stazione
San Pietro In C. Stazione
280 m
Scuole Scuole
Scuola Elementare "Edmondo de Amicis"
270 m
Futura
290 m
Scuola Media "Paolo Bagnoli"
350 m
Farmacia Farmacia
Orologio
40 m
Avoni
100 m
Farmacia San Pietro
450 m
Ospedali Ospedali
Polo Sanitario "Anacleto Bonora"
350 m
Ospedali
380 m
Supermercati Supermercati
Coop
200 m
Famila
860 m
Lida Shop Market
1,3 Km
Negozi Negozi
Negozi
80 m
Forno Festi
170 m
Bar Bar
Bar Italia
90 m
L'Angolo di Sonia BAR
190 m
Bar Buena Vista
230 m
Bar Black & White
250 m
Pampero café
380 m
Ristoranti Ristoranti
Dolce e Salato
40 m
Ristorante Al Sole
110 m
Tsuki
120 m
Uva Passa
490 m
Punto Pizza
650 m
Mostra tutto

Caratteristiche

Rif.:
61172169
Piano:
2 di 2 (Piano su più livelli)
Terrazzi:
1
Camere da letto:
3
Condizionamento:
Autonomo
Ascensore:
No
Mostra tutto
Prezzo Prezzo
€ 260.000
Rata mutuo Rata mutuo
€ 1.226 / mese
Spese annue Spese annue
€ 900
Proponi il tuo prezzoProponi il tuo prezzo

Classe Energetica

E
E
E
E
E
E
E
E
E
EP globale non rinnovabile:
133.28 kW h/m² anno
EP globale rinnovabile:
2.45 kW h/m² anno
EP invernale del fabbricato:
EP estiva del fabbricato:
Anno di costruzione:
1967
Riscaldamento:
Autonomo
Tipo impianto:
A radiatori
Tipo alimentazione:
Metano

Ti interessa visionare l'immobile?

Fissa un appuntamento  Fissa un appuntamento

Richiedi informazioni

Clicca su Leggi per aprire l'informativa
* Questi campi sono obbligatori

Calcola il tuo mutuo

Semplice e senza impegno
Anticipo

( % )
Mutuo

( % )

pochi semplici passi

inserisci i tuoi dati
Questionario completato
Grazie per aver richiesto un appuntamento senza impegno con un nostro Consulente del Credito e Assicurativo.

Hai inserito correttamente tutti i dati necessari e a breve riceverai una e-mail con un link da convalidare per inviare i tuoi dati.
Affiliato
Mc 2013 Srls
Via Matteotti, 89 40018 San Pietro In Casale (BO)

Il nostro staff


  • Martina Carpanelli
    Affiliata

  • Ilaria Nardini
    Coordinatrice

  • Pietro Colucci
    Collaboratore

  • Marco Gardellini
    Affiliato

  • Patrick Villani
    Collaboratore
Via Matteotti, 89 40018 San Pietro In Casale (BO)
Zona: Comuni di San Pietro in Casale e Galliera
Mostra su mappa
Orari: Dal lunedì al venerdì dalle 9.00 alle 13.00 e dalle 15.00 alle 19.30; sabato chiusura ore 13.00
Affiliato
Mc 2013 Srls
Via Matteotti, 89 40018 San Pietro In Casale (BO)

2026 Tecnocasa Franchising S.p.A. - P. IVA 08365160152 - Via Monte Bianco 60/A 20089 Rozzano (MI). Ogni agenzia ha un proprio titolare ed è autonoma. Privacy policy | Policy utilizzo | Cookie policy